Cabin :
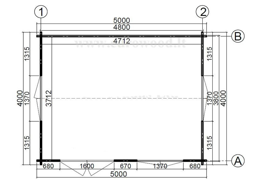
- External Size (Wall Log Length) : 5000 mm (W) x 4000 mm (D)
- Internal Size (approx.) :
- Usable Floor Area : 19.61m²
- Ridge Height : 2490 mm
- Wall Height : 2162 mm
- Roof Pitch : 10°
Included in Your Log Cabin Kit :
- Treated floor bearers
- Kiln-dried wall logs (untreated)
- Cylinder door lock with 2 keys
- Doors and windows as indicated on the floor plan.
- Floor Boards - 19mm Tongue and Groove.
- Roof Boards - 19mm Tongue and Groove.
- Assembly Guide.
Items not Included
The following items are NOT included in the kit, but are required for installation
- Screws: We would recommend 100mm x 5mm (for the base bearers) and 40mm x 4 mm stainless steel screws (for the doors and window frames).
- Nails to apply the roof and floor boards. We would recommend a 2.65 x 50mm wire nail
- Weather proof covering, such as felt shingles, shed felt or EPDM.
- Timber treatment for weather protection
Building Components
Doors
- 1x Double Half Glazed (DHG) (Primary)
Windows
- 2x Double Window (Double)
Rumus 5x4 Log Cabin
From : £5,190.00













